The Glen

Thorpebury in the Limes - Plot 337

Email: thorpebury@williamdavis.co.uk

Call: 07811 088011

Sales office open: 11:00am to 5:00pm, 7 days a week

Overview

A private entrance welcomes you into this well-designed two-bedroom apartment, offering bright, comfortable living across a single level.

At the heart of the home is a spacious open plan lounge and dining area, ideal for relaxing evenings or hosting friends. The adjoining kitchen is thoughtfully laid out, with generous worktop space and room for everyday dining.

There are two well-proportioned bedrooms sharing a modern bathroom with contemporary fittings. Practical touches including useful storage make day-to-day living simple and convenient.

Outside there is a driveway and garage.

Key features

**Images and CGI's are representation only and may include additional features/upgrades
N.B There are several variants of this house type, please ensure you speak to a sales adviser.

Floor Plans.

Ground Floor

Garage

  • 5.35m x 2.95m
  • 17’6” x 9’8”

Hall

  • 1.27m x 0.9m
  • 4’2” x 2’11”
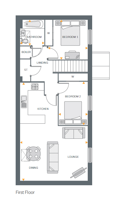
First Floor

Lounge/Kitchen/Dining

  • 7.77m x 5.35m
  • 25’5” x 17’6“

Bedroom 1

  • 3.12m x 3.11m
  • 10’2” x 10’2”

Bedroom 2

  • 3.4m x 2.27m
  • 11’1” x 7’5”

Bathroom

  • 1.99m x 1.88m
  • 6’6” x 6’2”

Similar homes.

Last of this housetype

The Rother
Plot 342

  • 2 bedrooms
  • Driveway
  • £274,950

View home

Two en-suites

The Henmore
Plot 338

  • 3 bedrooms
  • Off street parking
  • £384,950

View home

5% towards your deposit, saving £19,997

The Henmore
Plot 335

  • 3 bedrooms
  • Single garage
  • £399,950

View home